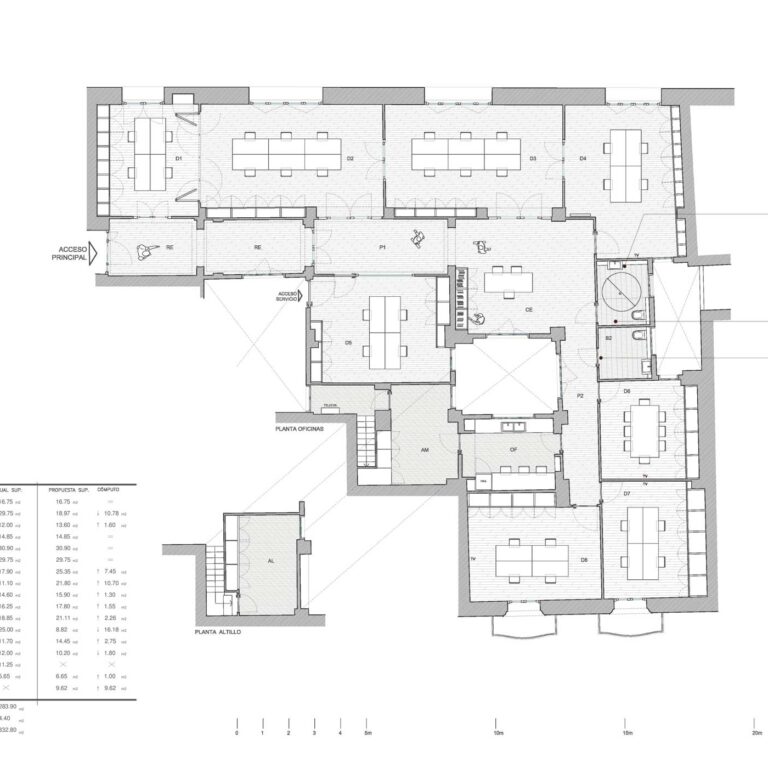
OFICINAS EN DIAGONAL
Reconversión de una vivienda de 320 m2 en despachos y oficinas.
Localizado en un edificio catalogado por Patrimonio (estilo novecentista), la rehabilitación preserva con escrúpulo las cornisas y detalles originales de la época pero proyectando un nuevo sistema de distribución de las salas de manera más flexible, funcional y actualizadas en instalaciones.
La reforma ha sido ejecutada íntegramente por el equipo de Diagonal House Constructora, desde el proyecto hasta la ejecución de retos técnicos y artísticos que se nos presentaron al tener unas estrictas consideraciones históricas en el inmueble.
Se hizo una intervención y seguimiento de obra exhaustivo para dotar las nuevas salas de oficinas en espacios funcionales y listos para ser usados con todas las comodidades.


































































































