CASA EN LA CERDAÑA
Proyecto de rehabilitación de una vivienda unifamiliar de 4 plantas en Fontanals de Cerdaña.
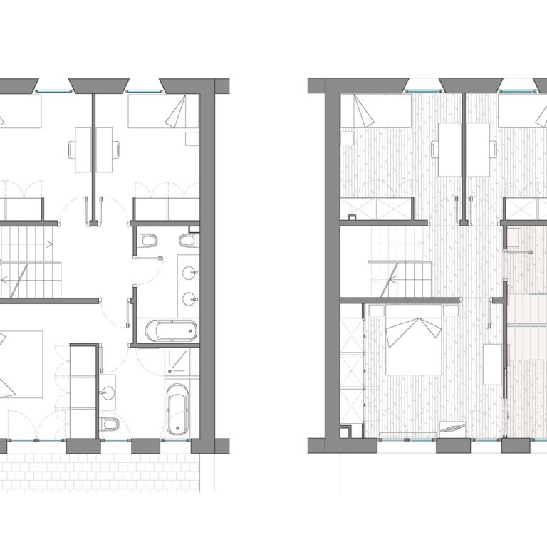
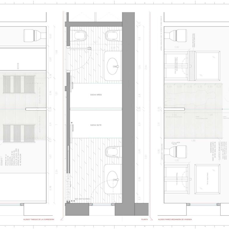
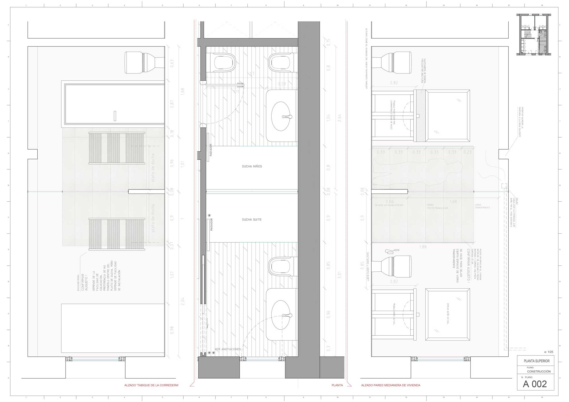
El cliente solicitó la mejora de la vivienda existente, incluyendo en el proyecto la renovación de la zona de baños y un estudio de las instalaciones -con sus consiguientes mediciones y planos.
Se hicieron múltiples trabajos que dieron un resultado espectacular y a medida que proporcionan a la casa un toque rústico pero actualizado.






















































































































































