Estamos especializados en los ámbitos de la rehabilitación integral de edificios, hoteles, fachadas, reforma de viviendas y locales comerciales. Tenemos experiencia en la gestión de obra nueva (vivienda e industrial). ¿Tiene un proyecto? Le proyectamos la solución.
DHC
Edificios, viviendas, fachadas y locales comerciales.
REHABILITAMOS
Realizamos todo tipo de rehabilitación de fachadas y acondicionamientos de fachadas contamos con un equipo de profesional especialistas en trabajos verticales, tomando todas las protecciones, protocolos y precauciones medioambientales.
Nuestro plan de ejecución consiste en la valoración de los daños, plan de ejecución y realización, nuestros clientes nos avalan por la profesionalidad, calidad y entrega en la fecha acordada.
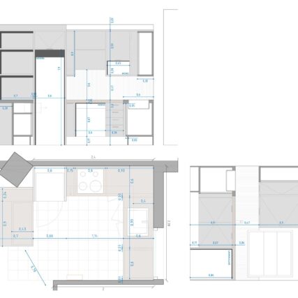
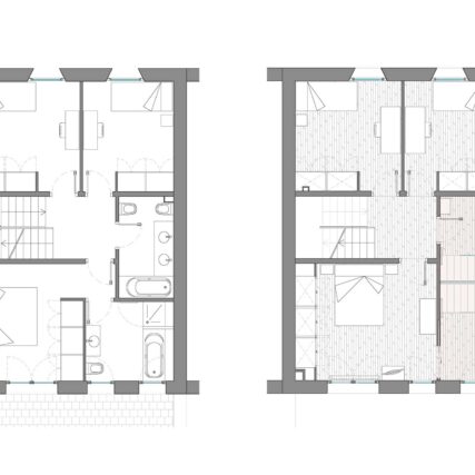
DISEÑAMOS
Contamos con los mejores profesionales de diseño de interiores y exteriores para hacer realidad la casa de tus sueños.
TRABAJAMOS
Con confianza y esfuerzo, realizamos obras de gran calidad desde proyectos de escala pequeña a escala grande. Ofrecemos un amplio servicio a medida del cliente según las necesidades que requiera. Estamos orgullosos de los resultados, es lo que sabemos hacer.
OBRAS REALIZADAS
Nuestra calidad, empeño y la pasión que dedicamos a cada proyecto, ya sea grande o pequeño, se refleja en el resultado de un trabajo bien hecho y ejecutado.


































